Institut
für
unschädliche,unwirtschaftliche,unfassbare,unwiderstehliche,ultrageschmeidige,unglaubliche,unbeschwerte,umwerfende,umfassende,unbeschreibliche,unerwartete,ungezogene,unkonventionelle,urige,ungewöhnliche,unerschütterliche,unkomplizierte,unterhaltsame,umweltbewusste,unverbrauchte,unvergleichliche,urbane,unnachahmliche,unverbesserliche Baukunst
_I
I_
¯I Lageplan
Plan: IFUB* I¯

Haus W


Sanierung und Umbau eines Einfamilienwohnhauses zu drei Wohnungen

Ort: Bodenseekreis

Jahr: 2021-2023

Team IFUB*: Johannes Krohne

Zusammen mit:
Thomas Wissing (Energieberatung), Holzbau Schmäh GmbH (Ausführungsplanung Holzbau)

Bauleute: privat

Handwerker*innen:
Holzbau Schmäh GmbH (Holzbau - GU), Alfred Keller GmbH (Sanitär, Heizung), Lehm-Bau.net (Wandheizung, Lehmputz), Malerbetrieb Maier (Malerarbeiten), Schreinerei Monkos (Holzterrasse), Baggerbetrieb Straßburger (Pflasterarbeiten)

Veröffentlichungen: 05/2024 Das Haus
_I
I_
¯I Ansicht Süd
Foto: DAS HAUS/Markus Traub I¯
Ein Einfamilienhaus aus den 70er Jahren wie man es millionenfach kennt. Mehrere Generationen hatten das Haus genutzt, es war vermietet, aber auch einige Zeit leer gestanden. Eine genaue Bestandsanalyse ergab, dass nicht nur die Fassade zeitgemäß gedämmt werden, sondern auch der mit Holzschutzmitteln belastete Dachstuhl ausgetauscht werden musste. Auch die Haustechnik war in die Jahre gekommen. Und trotzdem - es gab viele Bauteile und Elemente die erhaltenswert und noch gut in Schuss waren. Um so einen großen Umbau zu finanzieren, war aber nicht nur Materialschonung, sondern auch

ein kluges Grundrisskonzept

gefragt. So wurden das Erdgeschoss mit Straßenzugang und das Untergeschoss mit Gartenzugang zur zweistöckigen Familienwohnung der Eigentümer*innen. Der alte Dachstuhl wurde entsorgt und zwei zusätzliche Einheiten zur Vermietung im Obergeschoss neu geschaffen. Diese Maßnahme hilft nun nicht nur bei der Finanzierung, sondern schafft auch gleichzeitig dringend benötigten neuen Wohnraum.
_I
I_
¯I Haus vor dem Umbau
Foto: IFUB* I¯
Das

Bestandshaus

vor dem Umbau. Das Dach hatte nicht nur einen belasteten Dachstuhl und eine zerfallene Dämmung, sondern war auch ohne Drempel erbaut, also schlecht nutzbar. Auch war dieses Geschoss das einzige mit schöner Sicht Richtung Tal und See, hatte aber nur ein kleines Dachfenster. Klar, dass hier der Lösungsansatz gesucht und gefunden wurde.
_I
I_
¯I Ansicht Ost
Foto: Das Haus/Markus Traub I¯
Das Haus orientiert sich nun mit

Blick ins Tal

nach Süden. Das neue Dachgeschoss mit den beiden zusätzlichen Wohneinheiten erhielt eine nach Süden auskragende Dachterrasse, die gleichzeitig als Verschattung im Sommer dient und für eine spannungsreiche Gebäudeform sorgt. Für die große Familienwohnung im EG und UG gibt es nicht nur eine Terrasse im unteren Geschoss, sondern auch einen direkten Gartenzugang mit Terrasse im oberen Geschoss.
_I
I_
¯I Fassadenausschnitt
Foto: Das Haus/Markus Traub I¯
Auf der Südseite wurden neue Fenstern in die zum Teil nach unten vergrößerten Bestandsöffnungen eingebaut, um solare Gewinne einzufangen. Gleichzeitig dienen das überstehende Obergeschoss und der Bestandsbalkon für die steil stehende Sonne in den heißen Sommermonaten als Verschattung. Eine Besonderheit ist, dass der alte Balkon in seiner ursprünglichen Form erhalten wurde. Dies dient nicht nur der Kosten- und Ressourceneinsparung sondern schafft auch eine eigene

Ästhetik aus alt und neu.

_I
I_
¯I Dachterrasse
Foto: Das Haus/Markus Traub I¯
Die beiden oberen Einheiten teilen sich eine großzügige

Dachterrasse

mit fantastischer Aussicht ins Tal. Von hier aus blickt man bis zum Bodensee. Als Bodenbelag wurde Kies gewählt, einerseits um den Eindruck eines Gartens zu erwecken, andererseits weil es kostengünstig und einfach im Unterhalt ist. Die Konstruktion für die Befestigung von Sonnensegeln wurde bei der Gestaltung der Geländer gleich mitgedacht - und eine sitzhohe Brüstung sorgt für Aufenthaltsqualität auch ohne eigene Balkonmöbel.
_I
I_
¯I Ansicht Nord
Foto: Das Haus/Markus Traub I¯
Die Hanglage wurde optimal ausgenutzt. So sind von der nördlichen Straßenseite nur zwei Geschosse zu sehen. Die neue Außentreppe erschließt die zwei neuen Einheiten im DG und dient gleichzeitig als Vordach für die untere Eingangstür. Die Fassade verbindet optisch das neue DG mit dem gut gedämmten Altbestand. Hier auch gut sichtbar: Das ganze Dach wurde mit Photovoltaik belegt, mit der auch die Luft-Wasser Wärmepumpe für Heizung und Warmwasser betrieben wird. Insgesamt wurde der

KfW Effizienzhaus 70

Standard erreicht.
_I
I_
¯I Fassade
Foto: Das Haus/Markus Traub I¯
Bei der

Fassade

wurde auf eine Schalung aus heimischer Kiefer in zwei Ausführungen zurückgegriffen. Die Außenhaut des Hauses ist mit einer robusten, rauhen und unbehandelten Stülp-Schalung verkleidet. Die Ausschnitte wie Eingang, Dachterrasse, Balkone und die südliche Terrasse dagegen, also all die Flächen die man öfter berührt bzw. an denen man sich anlehnt, wurden glatt und gehobelt, sowie weiß lasiert ausgeführt..
_I
I_
¯I Küche
Foto: Das Haus/Markus Traub I¯

Die neue Küche

ist das Herzstück der großen Familienwohnung und wurde mit direktem Zugang zum Garten im Untergeschoss angeordnet. Für eine bessere Belichtung wurde nicht nur ein neues Sitzfenster geschaffen, sondern auch das Fenster zum Garten bis zum Boden vergrößert und mit großen Schiebetüren versehen. Hierdurch wurde aus einem Kellerraum ein wunderbar heller und großzügiger Raum mit direktem Außenbezug.
_I
I_
¯I Küche
Foto: Das Haus/Markus Traub I¯
Eine Besonderheit ist die

variable Kochinsel.

Eine Hälfte der Kochinsel ist auf Rollen gelagert, um verschiedene Möblierungen je nach Jahreszeit, Belichtung und Laune zu ermöglichen. Das mobile Element kann sogar auf die Terrasse gefahren werden um im Freien zu kochen - ein Gasherd mit eingestellter Gasflasche machts möglich.
_I
I_
¯I Küche
Foto: Das Haus/Markus Traub I¯
Bei der

Materialwahl

ist die neue Küche und das Wohnzimmer in vielerlei Hinsicht ein Musterbeispiel. Als Bodenbelag wurden hell geseifte Massivholzdielen aus Weißtanne verwendet. Diese liegen auf einer Fußbodenheizung im Trockenbausystem aus Holzfaser ohne Zement. Die zusätzliche in dicken Lehmputz eingebettete Wandheizung sorgt für eine behagliche Atmosphäre - sowohl was die Temperatur als auch was die Luftfeuchtigkeit angeht. Beim Abbruch der abgehängten Decken wurden Sichbetondecken mit roher Holzschalung freigelegt. Diese wurden sichtbar belassen und schaffen so nicht nur höhere Räume sondern sorgen auch für einen modernen Flair. Selbstverständlich wurden auch die Küchenmöbel ökologisch erstellt. Fichte Dreischichtplatten wurden hierfür bei den Fronten mit farbigem Leinöl gestrichen und die Korpen transparent geölt. Die Arbeitsplatten wurden passend zur Nutzung gewählt. Eine Edelstahl-Gastroplatte als Nassbereich mit Spüle. Naturstein beim Ofen zum Backen und Kneten. Massiver Ahorn beim Herd zum direkt darauf schneiden und arbeiten.
_I
I_
¯I Wohnzimmer
Foto: IFUB* I¯

Das Wohnzimmer

schließt über einen offenen Durchgang direkt an die Küche an und ist entsprechend im gleichen Stil gestaltet.
_I
I_
¯I Wannenbad
Foto: Das Haus/Markus Traub I¯
Neben Küche, Wohnen, Technik- und Lagerraum sowie einer kleinen Sauna wurde auch ein

Bad

im Untergeschoss untergebracht.
_I
I_
¯I Kinderzimmer
Foto: IFUB* I¯
Im Obergeschoss liegen die Schlafzimmer für Kinder und Eltern. Auch hier gibt es ein großes

Sitzfenster.

Eine Besonderheit sind die nach außen öffnenden Fenster. So kann man im Sommer im offenen Fenster gemütlich abhängen.
_I
I_
¯I Schlafzimmer
Foto: Das Haus/Markus Traub I¯
Im Obergeschoss wurde auch getestet, was der minimale Platzverbrauch für ein Schlafzimmer sein kann. Auf

unter 7m²

findet ein Doppelbett und Stauraum Platz. Durch das Fenster in Sitzhöhe ist der Raum gut belichtet und belüftet und man kann direkt zum Balkon. Beengt wirkt hier nichts, eher im Gegenteil. Durch das perfekt eingepasste Bett laden die Wände zum Anlehnen ein. Auch können Babies hier kaum herausfallen. Der ganze Raum strahlt Gemütlichkeit aus.
_I
I_
¯I Innentüren und Bad
Foto: IFUB* I¯
Die furnierten

Innentüren

aus dem Bestand wurden erhalten und aufbereitet. In Kombination mit neuen, modernen Materialien entfalten diese eine eigene, besondere Ästhetik.
_I
I_
¯I Bodenbeläge
Foto: Das Haus/Markus Traub I¯
Wo es möglich war, wurden die originalen Materialien erhalten. So beispielsweise die

Parkettböden

im oberen Geschoss, die auch wunderbar mit den neuen Tannendielen harmonieren.
_I
I_
¯I Wohnen und/oder Arbeiten
Foto: DAS HAUS/Markus Traub I¯
Im neu aufgesetzten

Dachgeschoss

entstanden zwei zusätzliche Einheiten. Sie wurden so gestaltet und strukturiert, dass sie sowohl als Wohnungen, als auch als Büro oder Praxisräume funktionieren können. Nutzungsflexibilität ist ein immer wiederkehrendes Prinzip in den Planungen des IFUB*.
_I
I_
¯I Decke
Foto: DAS HAUS/Markus Traub I¯
Auch optisch wird im DG sichtbar, dass der neue Aufbau in

Holzbauweise

erstellt wurde. So sind die Außenwände innenseitig mit Fichtenholzschalung verkleidet. Neben den großen Fenstern zum Balkon sorgen Dachfenster für gute Durchlüftung und direkten Sonnenschein zu unterschiedlichen Tageszeiten.
_I
I_
¯I Grundriss UG
Plan: IFUB* I¯

Grundriss Untergeschoss

_I
I_
¯I Grundriss EG
Plan: IFUB* I¯

Grundriss Erdgeschoss

_I
I_
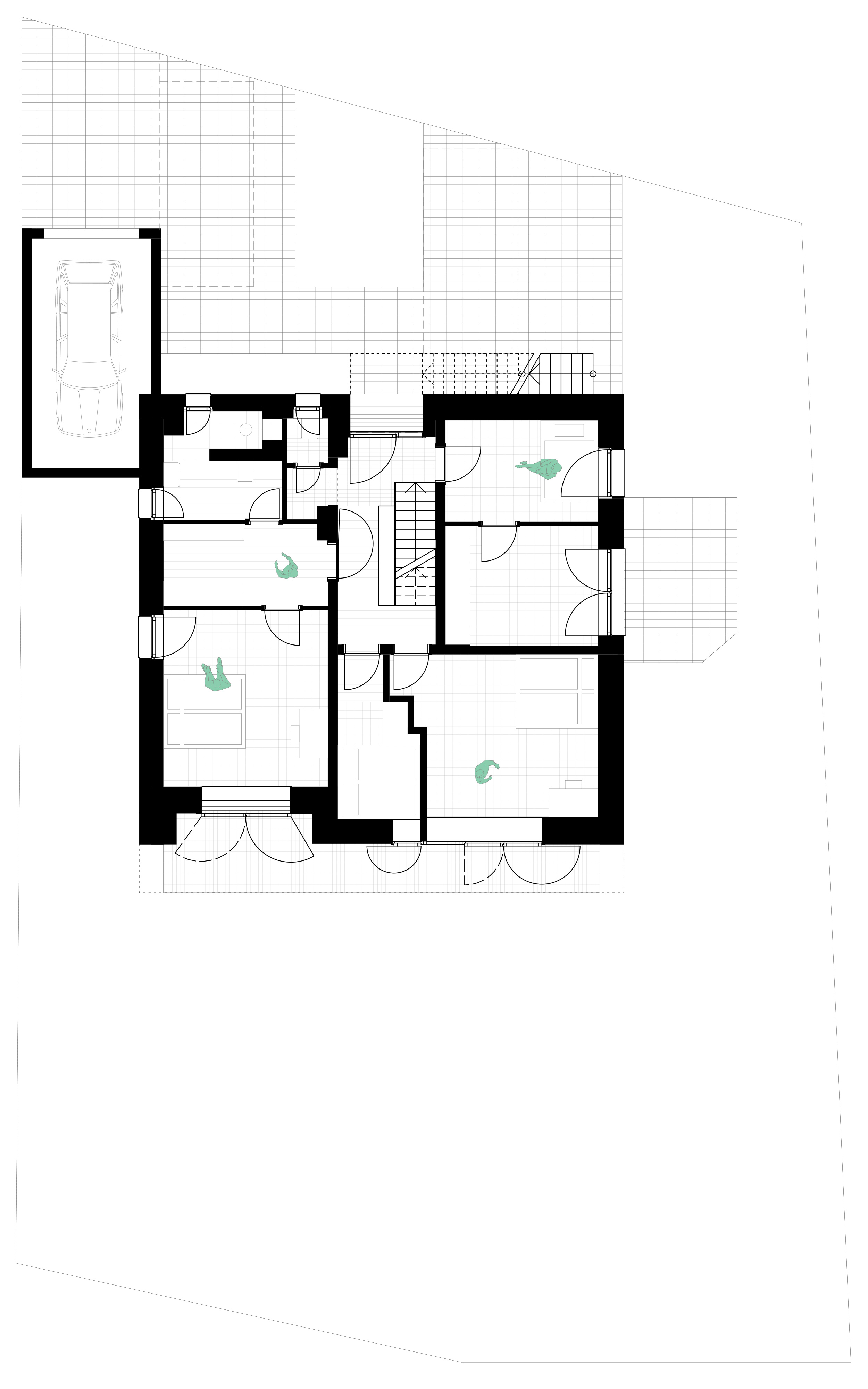
¯I Grundriss OG
plan: IFUB* I¯

Grundriss Obergeschoss

_I
I_
¯I Ansicht Nord
Plan: IFUB* I¯

Ansicht Nord

_I
I_
¯I Ansicht Ost
Plan: IFUB* I¯

Ansicht Ost

_I
I_
¯I Ansicht Süd
Plan: IFUB* I¯

Ansicht Süd

_I
I_
¯I Ansicht West
Plan: IFUB* I¯

Ansicht West

_I
I_
¯I Querschnitt
PlaN: IFUB* I¯

Querschnitt