Institut
für
unschädliche,unwirtschaftliche,unfassbare,unwiderstehliche,ultrageschmeidige,unglaubliche,unbeschwerte,umwerfende,umfassende,unbeschreibliche,unerwartete,ungezogene,unkonventionelle,urige,ungewöhnliche,unerschütterliche,unkomplizierte,unterhaltsame,umweltbewusste,unverbrauchte,unvergleichliche,urbane,unnachahmliche,unverbesserliche Baukunst
_I
I_
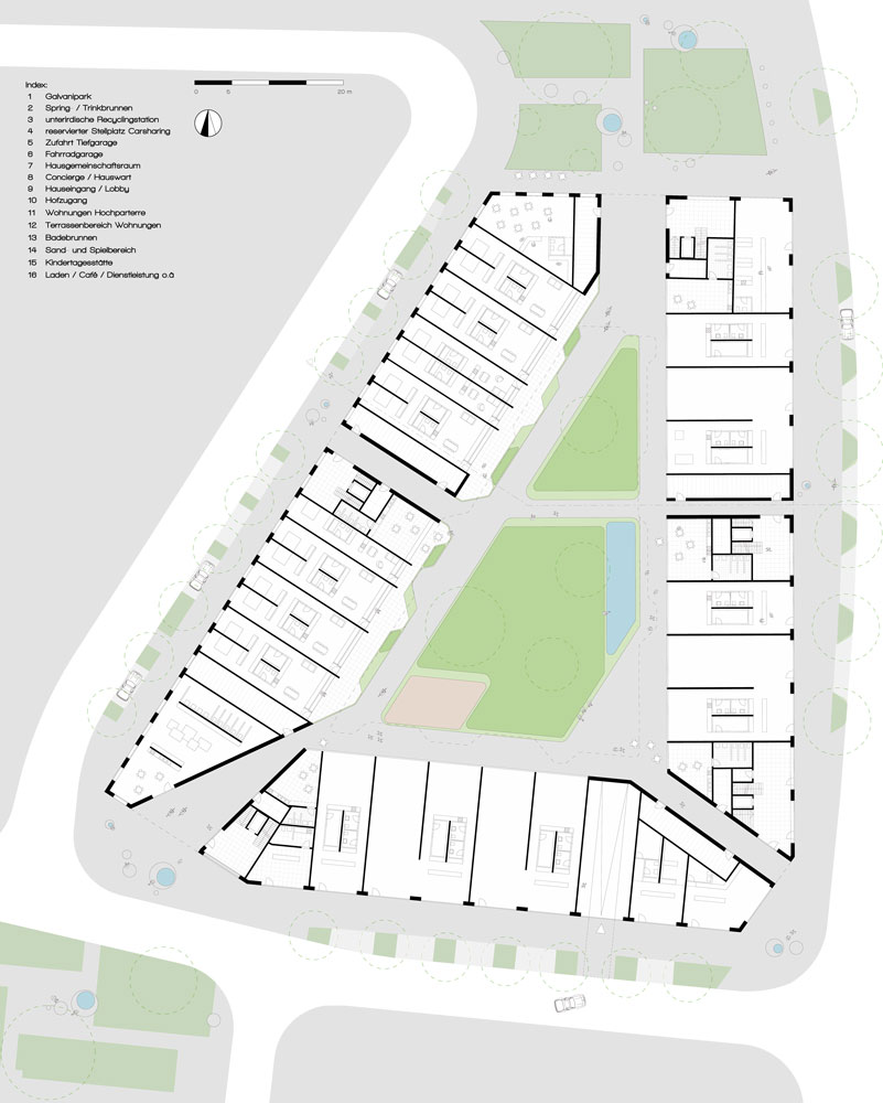
¯I Lageplan
Plan: IFUB* I¯

Südberg


Wettbewerb für Städtebau und Wohnungsbau eines neuen Stadtblocks in der Südstadt Nürnberg

Ort: 90459 Nürnberg

Jahr: 2013

Auslober: Europan

_I
I_
¯I Blick vom Platz an der Sperberstraße
Rendering: IFUB* I¯
Die Metropolregion Nürnberg - Fürth - Erlangen wächst. Doch nicht nur das. Veränderungen in Nutzungsstruktur und Arbeitsweise, demographischer Wandel, neue Lebensentwürfe sowie Immigration und Integration erfordern eine flexible Stadt und eine neue Herangehensweise. Stellvertretend für den Wandel steht die

Südstadt Nürnberg.

Anhand des Projekts Südberg, dem Neubau eines kompletten Stadtblocks, wird aufgezeigt wie Nürnberg seine aktuellen und zukünftigen Probleme nachhaltig meistern kann.
_I
I_
¯I Grundfläche
Logo: IFUB* I¯
Stadträumlich erschließt sich das neue Bauwerk anhand weniger, präziser, ortsbezogener Entwicklungsschritte.
Grundlage der Volumensfindung ist dabei die

Grundfläche.

_I
I_
¯I Maximalvolumen
Logo: IFUB* I¯
Anhand von vorgegebenen Abstandsflächen und maximaler Dachneigung entsteht das

Maximalvolumen.

In Reaktion auf die Umgebung wird dieses an drei Stellen in Richtung der angrenzenden Plätze beschnitten.
_I
I_
¯I Schnittvolumen
Logo: IFUB* I¯
Die durch den Zuschnitt entstandenen Giebelfassaden des

Schnittvolumens

lösen spielerisch Probleme: Sie organisieren die Höhenversprünge des Volumens, geben durch ihre Höhe den zugewandten Stadträumen einen angemessenen Rahmen und markieren die drei Hofzugänge.
Das Volumen des Stadtblocks wird anschließend durch die Kürzung des Maximaldachs ermittelt.
_I
I_
¯I Stadtblock
Logo: IFUB* I¯
Der

Stadtblock

bettet sich rücksichtsvoll in die bestehenden Strukturen ein und schafft dennoch einen starken, spannungs- und abwechslungsreichen Baukörper in der Stadt.
Der zur Belichtung notwendige Innenhof wird dabei zum maßgeblichen Baustein.
_I
I_
¯I Fertiges Volumen
Logo: IFUB* I¯
Der neue Innenhof des

Fertigen Volumens

reagiert auf das Defizit an Grünflächen und wird zur grünen Oase für die Hausgemeinschaft. Die Terrassierung der Fassaden schafft ideale Belichtungsverhältnisse für die Hoffläche bei maximaler Flächennutzung. Zusätzlich entstehen großzügige Terrassenflächen über alle Geschosse die zusammen mit der Hoffläche zu einem großen Garten für Alle werden.
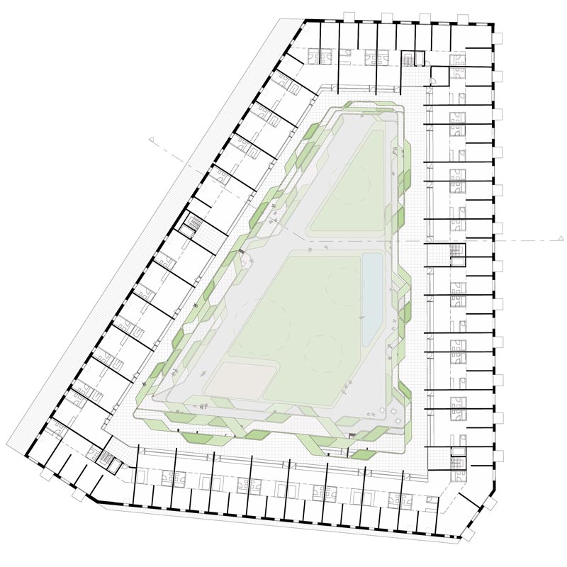
_I
I_
¯I Grundriss EG / Lageplan
Plan: IFUB* I¯
Auf der Straßenebene werden

Block und Stadt verwoben.

An den offenen Zugängen zum Hof machen Trink- und Springbrunnen die Hitze im Sommer erträglich und geben Anreize zur Nutzung der neuen Vorbereiche. Der neue, kleine aber feine Galvanipark im Norden bietet Grünflächen mit Bäumen.
Die Nutzungen im Erdgeschoss ordnen sich den verschiedenen Seiten des Blocks zu. An den belebten Straßen werden öffentliche Funktionen angesiedelt. Eine Kita, Läden, Cafés und ähnliches sorgen hier für Leben. Zur ruhigeren Schillerstraße sind im Erdgeschoss Wohnungen als Hochparterre ausgebildet.
Der halb öffentliche, großzügig begrünte Innenhof ist durch fünf Eingänge frei zugänglich. Die zentrale Grünfläche ist über das Niveau der Durchgänge angehoben und bietet neben einer Liegewiese auch Sitz- und Spielflächen sowie einen Badebrunnen.
_I
I_
¯I Blick in den grünen Innenhof
Rendering: IFUB* I¯
Projektgrundlage ist der Gedanke einer integrativen, sozialverträglichen und generationenübergreifenden Gestaltung. Insbesondere auf zufällige Begegnungsqualität und attraktive Gemeinschaftsbereiche wurde großer Wert gelegt. Der

grüne Innenhof

wird in allen Ebenen zum Dreh- und Angelpunkt des Konzepts. Über die an den Hofzugängen liegenden Treppenhäuser erreicht man die Wohnung entlang umlaufender Laubengänge. Diese sind viel mehr als reine Erschließung. Großzügige Gemeinschaftsterrassen mit Einbuchtungen und Aufweitungen, fest installierten Pflanztrögen und Sitzbänken, laden zum Treffen, Ratschen und Verweilen mit den Nachbar*innen ein.
_I
I_
¯I Blick vom Platz an der Sperberstraße
Rendering: IFUB* I¯
Die Integration in die Stadt gelingt mit einer einheitlichen Gestaltung der

Außenfassade,

die sich von der Wirkung nach innen deutlich abhebt. Zu den Straßen hin bringt eine massive Wandkonstruktion sowohl den notwendigen Schallschutz als auch Speichermasse mit sich. Die harte, kantige Form des Stadtblocks wird durch das wunderschöne Material Backstein gefördert und gleichzeitig abwechslungsreich schattiert. Im Dach verwendete Biberschwanzziegel unterstreichen mit dem Backstein die Skulpturalität. Regelmäßige quadratische Fensterformate formulieren eine städtische Fassade. Das Wechselspiel von Balkon mit innenliegender Doppeltür mit dem außenliegenden Schwingfenster bewirkt eine zusätzliche Tiefe. Die für jedes Haus unterschiedlichen Balkongeländer sorgen für eine subtile Unterscheidbarkeit.
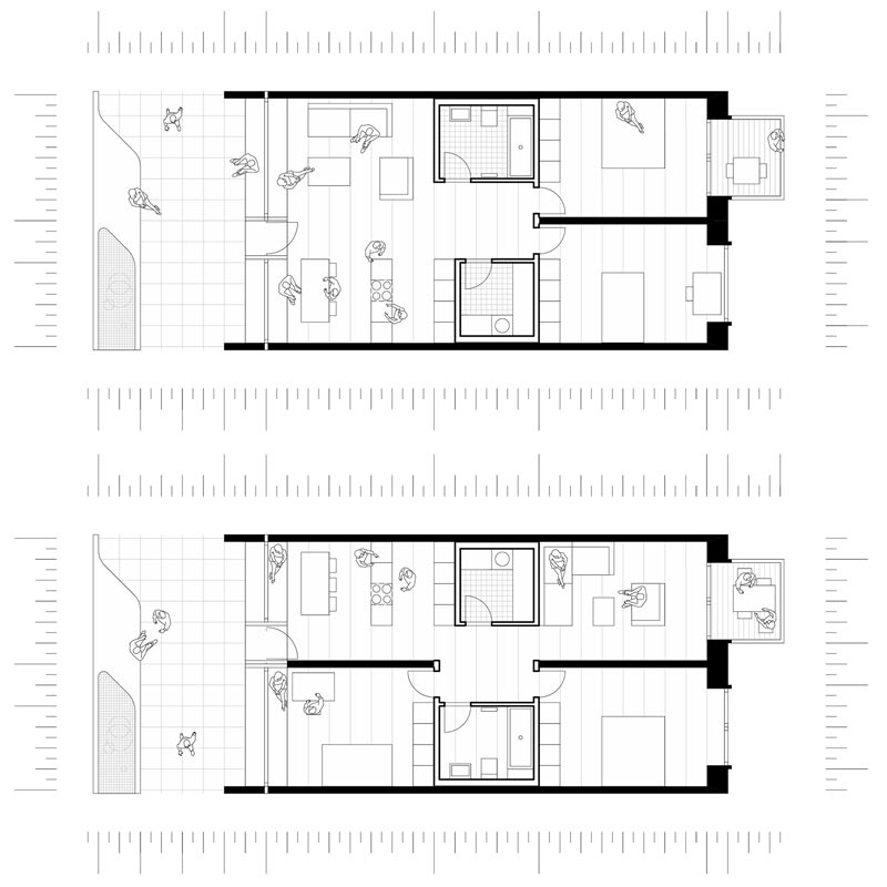
_I
I_
¯I Wohntypologien
Plan: IFUB* I¯
Auf einem durchgängigen Raster von 3,60 m sorgt eine Schottenkonstruktion nicht nur für eine wirtschaftliche Bauweise, sondern bietet auch alle Möglichkeiten zur flexiblen Gestaltung verschiedenster

Wohn- typologien.

Innerhalb einer Achse lassen sich Zweizimmerwohnungen, innerhalb von zwei Achsen Drei- bis Vierzimmerwohnungen nach Wunsch einfügen. Eine sinnvolle Differenzierung der Wohnungsgrößen für ein breitgefächertes Angebot erfolgt über die Staffelung der Ebenen zum Innenhof.
_I
I_
¯I Grundriss Tiefgarage
Plan: IFUB* I¯

Grundriss TG

_I
I_
¯I Grundriss 2. Obergeschoß
Plan: IFUB* I¯

Grundriss 2. Obergeschoß

_I
I_
¯I Grundriss 4. Obergeschoß
Plan: IFUB* I¯

Grundriss 4. Obergeschoß

_I
I_
¯I Grundriss 5. Obergeschoß
Plan: IFUB* I¯

Grundriss 5. Obergeschoß

_I
I_
¯I Grundriss 6. Obergeschoß
Plan: IFUB* I¯

Grundriss 6. Obergeschoß

_I
I_
¯I Querschnitt
Plan: IFUB* I¯

Querschnitt

_I
I_
¯I Ansicht Pillenreuther Straße
Plan: IFUB* I¯

Ansicht Pillenreuther Straße

_I
I_
¯I Fassadenabwicklung Sperberstraße
Plan: IFUB* I¯

Fassadenabwicklung Sperberstraße