Institut
für
unschädliche,unwirtschaftliche,unfassbare,unwiderstehliche,ultrageschmeidige,unglaubliche,unbeschwerte,umwerfende,umfassende,unbeschreibliche,unerwartete,ungezogene,unkonventionelle,urige,ungewöhnliche,unerschütterliche,unkomplizierte,unterhaltsame,umweltbewusste,unverbrauchte,unvergleichliche,urbane,unnachahmliche,unverbesserliche Baukunst
_I
I_
¯I Site plan
Plan: IFUB* I¯

GFK Berlin


Redevelopment and redesign of offices in a former lightbulb factory in Berlin for the GfK’s Big Data Hub.

Location: Oberbaum City, 10245 Berlin

Year: 2015–2016

In cooperation with Vitra Interior Design Services

Vitra IDS: Basic research, conceptual design, preliminary designs and planning

IFUB*: Preliminary, construction, and detailed planning, assistance in contracting and award of proposals, project supervision and documentation

Client: GfK SE (Gesellschaft für Konsumforschung - Consumer Research Association)

In the Press:Espaces Contemporains 6/2016, AIT 04/2017, DEAR 3/2017, 100 working SPACES 2017/18, CUBE 2018, Signage 2019, HIGH ON OFFICE DESIGN 05/2020, Designing Orientation: signage concepts & wayfinding systems 10/2020
Site plan – Plan: IFUB*
_I
I_
¯I Entrance and Communal Room
Photo: Eduardo Perez I¯
Entrance and Communal Room – Photo: Eduardo Perez
When talking about market and consumer research, the words “Big Data” instantly spring to mind. Most of today’s vital business information is now being stored digitally, and Germany’s largest business research institute, the

GfK SE

has long been aware of this. Until recently, the 30–50 members of their Consumer Research team, known as the Big Data Hub, were scattered across Berlin. This new office complex aims not only to bring these employees together but to pilot a new age in the GfK SE’s office and work spaces. As experts in working environments, Vitra IDS were close cooperation partners of IFUB* both in planning and on-site.
_I
I_
¯I The Courtyard
Photo: Eduardo Perez I¯
The Courtyard – Photo: Eduardo Perez
The new, centralized office space is situated in Berlin’s Oberbaum City, formerly known as Lampenstadt, or

the city of lights.

For decades, the complex was a centre for lightbulb production, before being renovated and redeveloped into office buildings between 1993 and 2000. Today, the historical brick facades are the only evidence of this industrial past and little remains in terms of industrial charm in the interior spaces.
_I
I_
¯I Open Space
Photo: Eduardo Perez I¯
The open and flexible room concept, Open Space, was expertly tailored by Vitra to meet the specific work methods and requirements of GfK SE. Even before planning, these considerations were intensively explored in

Workshops

and discussions.
Open Space – Photo: Eduardo Perez
_I
I_
¯I Open Space
Photo: Eduardo Perez I¯
Open Space – Photo: Eduardo Perez
In the rented space on the second floor, large columns forming part of the original supporting structure lend themselves perfectly to the concept, however it was necessary to remove the existing static office cells in order to achieve a true

Open Space office

The result is a series of airy, bright areas that preserve the spatial flair of the original factory building.
_I
I_
¯I Open Space
Photo: Eduardo Perez I¯

Diverse workspaces

in the Open Space concept provide staff the possibility to work in isolation or in a team. Height-adjustable tables fit every user requirement. The flexible-focus workspaces can be seen in the foreground.
Open Space – Photo: Eduardo Perez
_I
I_
¯I Modular storage frames
Photo: Eduardo Perez I¯
Vitra‘s office concept was developed in collaboration with IFUB* as part of an intensive planning operation. Modular, latticed frames in white steel function as

partitioning walls and ceilings.

Custom-made for the project, they form a fundamental part of the design. As dynamic, suspended elements they also help to break up the stark industrial optics of the building. Whiteboards, planters, shelving, and sound-absorbent foam cubes can all be integrated and arranged according to the needs of the employees. White hooks further extend the element’s use as a wardrobe.
Modular storage frames – Photo: Eduardo Perez
_I
I_
¯I Flexible Whiteboards
Photo: Eduardo Perez I¯
Flexible Whiteboards – Photo: Eduardo Perez
The

magnetic whiteboards

which can be easily moved around on the modular frames without the need of any tools, were an instant hit with staff members.
_I
I_
¯I Suspended ceiling element
Photo: Eduardo Perez I¯
Suspended ceiling element – Photo: Eduardo Perez
The

modular frames

are not just used as partitions, but in some areas as suspended ceilings. Here too, the incorporation of special sound-absorbing cubes works to soften the strong acoustics and resonance of the Open Space offices. As a reference to the original function of the building as a lightbulb factory, large, classic-style lightbulbs using modern LED technology hang free through the frames.
_I
I_
¯I Lockers
Photo: Eduardo Perez I¯
The specially selected furnishings were custom-finished to fit the overall colour and material scheme. For example, the built-in storage, planters, and

lockers

visible here, are all finished in the same birch multiplex panelling as the flexible focus workspaces, creating a perfectly coordinated look.
Lockers – Photo: Eduardo Perez
_I
I_
¯I Illuminated sign
Photo: Eduardo Perez I¯
Illuminated sign – Photo: Eduardo Perez
Many factors need to be considered when creating the optimal working conditions of an Open Space office. A good coffee, of course, is a particularly important feature in any office—the

illuminated sign

in the entrance area points the way.
_I
I_
¯I Communal area
Photo: Eduardo Perez I¯
To ensure the workspaces remain undisturbed, the reception area with kitchenette, espresso bar, and lounge was combined into one generous

communal area.

A large table and the counter in the background offers itself not only to chance encounters and gatherings of guests and employees, but also for meetings or small office parties.
Communal area – Photo: Eduardo Perez
_I
I_
¯I Lounge
Photo: Eduardo Perez I¯
Lounge – Photo: Eduardo Perez
The slightly elevated and cosy

lounge

is nestled behind the counter. Inspired by a "fallen cabinet," the elevated floor of the lounge is designed like the front of a large built-in storage unit. The bench can also be used for storing cables and electronic gaming equipment.
_I
I_
¯I Built-in storage unit
Photo: Eduardo Perez I¯
The large,

built-in storage unit

lends a special feel to the communal area. Espresso bar, printing facilities, storage, lockers, and two sitting niches for waiting and exchanging ideas are combined into a single element. Lying central to the office entrance, access to the kitchenette and WC’s are also optimally located here.
Built-in storage unit – Photo: Eduardo Perez
_I
I_
¯I Discussion Niche
Foto: Eduardo Perez I¯
Discussion Niche – Foto: Eduardo Perez
The

discussion niche

has proved popular with employees - it serves well for informal meetings but also as storage for all sorts of office essentials. For pleasant acoustics, a rear wall made of wooden acoustic panels is disguised behind a lick of wall paint.
_I
I_
¯I Handle detail
Photo: Eduardo Perez I¯
Handle detail – Photo: Eduardo Perez
Labelling and

handles

are recurring problems in furniture design. The IFUB*, turning this problem into an elegant design solution, created a unique quality system: the simple, cut-out handles define running grooves for positioning slide-in letters.
_I
I_
¯I Locker detail
Photo: Eduardo Perez I¯
All cupboards and lockers incorporate this system. The

slide-in letters

can be effortlessly rearranged and exchanged to suit the current contents and users.
Locker detail – Photo: Eduardo Perez
_I
I_
¯I Modular storage frame
Photo: Eduardo Perez I¯
Modular storage frame – Photo: Eduardo Perez
The small details can be the most entertaining - like the graceful long

view

of the built-in storage unit thought the steel frame partition.
_I
I_
¯I Conference room
Photo: Eduardo Perez I¯
For undisturbed meetings and intensive teamwork, the closed

conference rooms

are an important aspect of the Open Office Space concept. Coloured wall graphics define and integrate the whiteboards and create a more relaxed atmosphere.
Conference room – Photo: Eduardo Perez
_I
I_
¯I Room number
Photo: Eduardo Perez I¯
Room number – Photo: Eduardo Perez
Particular value was placed on a coherent overall composition. The design of the

room numbers

was not, therefore, left to chance, but integrated into the concept.
_I
I_
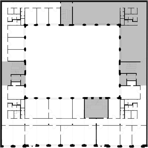
¯I Floor plan of 2. floor before the redesign
Plan: IFUB* I¯

Floor plan of the 2nd Floor before the redesign

Floor plan of 2. floor before the redesign – Plan: IFUB*
_I
I_
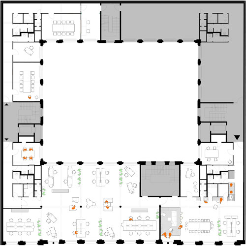
¯I Floor plan of 2. floor after the redesign
Plan: IFUB* I¯

Floor plan of the 2nd floor after the redesign

Floor plan of 2. floor after the redesign – Plan: IFUB*